销量领先 金士顿a400 240g 装机特价:529[促销]

相关图片

kingston 金士顿 a400系列 ssd固态硬盘 sata3.0/m.2接口 提升性能 m.

kingston/金士顿 a400 120/240/480/960g固态硬盘sata3笔记本2.

性能提升明显,金士顿a400固态硬盘评测

你旧电脑还能再战吗金士顿a400升级电脑秒开你电脑

金士顿a400固态硬盘变成satafirms11分区丢失找不到分区不读盘数据

随机推荐

皇家项链 泰剧小水开年新作小心真的太美了一部让你哭的虐心大作

眼睛图片眼睛五官特写眼

花千骨简笔画可爱赵丽颖

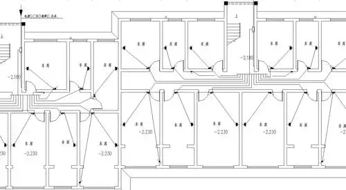
某小区商住楼电气全套图纸-建筑电气施工图-筑龙电气工程论坛

耶稣基督

李一桐晒《狐妖小红娘王权篇》片场照,脸蛋软糯,眼神透着无辜_娱乐

苗乙乙

超火单人动漫头像你守护你的热爱我守护你和你的热爱