设计师程冠军儿童房之"澜亭雅慧"

相关图片

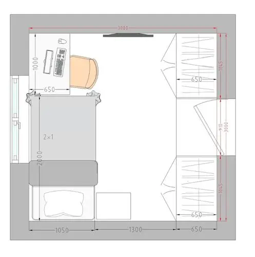
【武汉广埠屯】20190801室内软装设计白班 第十讲 儿童房空间

cad室内设计施工图常用图块之儿童房

儿童房如何设计4种不同布局方案和最佳家具搭配技巧

第11讲 儿童房空间定制 - 云琥在线 - 互联网视觉设计在线培训专家

儿童房的设计要点有小孩的家庭都要看

随机推荐

简笔画教程 黑白装饰画 黑白条纹画线条练习装饰画简笔画条纹教程

全民健身——单车"悦"林间|全民健身|骑行|爱好者_新浪新闻

先让她装一会儿表情包 - 表情图

绝绝子的炸土豆

衬衫男头像半身控男生部位头像白衬衫

【布鞋情怀】现代版熟女穿布鞋的魅力b(162p)

明明长着同一张脸,一个成顶流,一个却死活红不了,连于正都发愁

初中生专用头像 @78.年轮.78 (暂退) (己有闺)