厨房布局平面图

相关图片

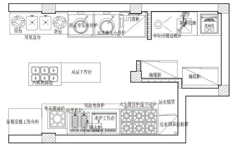
学校食堂厨房平面图1页_第1页

139㎡家人闲坐灯火可亲餐厅欧式豪华厨房设计图片赏析

餐厅厨房一体化设计之后,空间不在狭小,家人也可在厨房帮忙,增加了

宜家装修开放式厨房餐厅设计

80平米简约风格厨房餐厅一体装修效果图

随机推荐

胡歌人帅胡歌演技好胡歌心善

动漫二次元人物素描过程步骤不要错过哦

手绘日漫《约会大作战》素描风崇宫真那,漫画教程

红色礼物圣诞节摄影图横版海报

字体设计 爱运动

甘肃省宕昌市官鹅沟风景区票价40元门票正面图_旅游景点门票【乐淘

羞羞的铁拳精彩的表演让我露出真心实意的笑

毕业季,难别的是熟悉的校园,难忘的是完美的回忆,难离的是亲密的校友