农村二层房屋设计图,以后家家户户都是这样的小洋楼,造价不高人 - 抖

相关图片

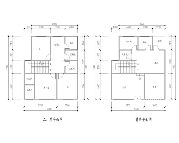
对称欧式二层房屋设计图(附2022下半年乡村二层房屋户型图) - 轩鼎

j220农村自建二层小别墅设计图纸全套

农村二层小别墅怎么设计?(两层小别墅农村设计图)

2层农村别墅设计图纸

11x8米20万农村小别墅二层小别墅设计图农村房屋设计图

随机推荐

tfboys三小只戴皇冠!千玺霸气,王源呆萌,王俊凯要不要那么帅啊

王俊凯头像

一个人的酒吧

2003年,angelababy以模特身份出道,此后,她因担任时尚模特而在香港崭

双鱼座一月份怎么克制冲动

不对称发型(20款)

拓浦曲面显示器怎么样值得买吗,台式显示器什么牌子性价比高?

纯文字头像你不要逞强难过了就对我讲