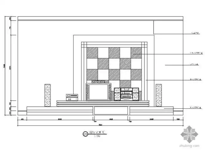
客厅立面方案2

相关图片

家居空间手绘文本平立面图客厅卧室效果图

[分享]电视背景墙立面图及节点图资料下载

沙发背景墙立面图

本组带来的是9款沙发立面图,不一样的客厅可以不同的沙发摆放,一起来

24款电视背景墙立面图

随机推荐

都说沈腾年轻时长的帅,看到年轻时的雷佳音,才知啥叫国民校草!

炫酷暗黑系机甲霸气手绘插画,高清图片,艺术壁纸-回车桌面

让我们一起回到年少时代听周董的歌周杰伦忍者音乐mv每一帧都是

「xxx,我想盘你」熊猫头悄悄话表情包模板-发表情

电商大屏数据可视化设计经验分享

斗罗:盘点唐三公主抱小舞的九大名场面,狗粮吃饱饱

5,6.11终于见红了,有图慎点

王晶晶