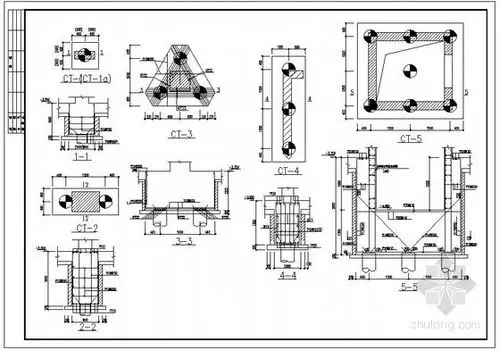
承台结构图.dwg

相关图片

桩承台基础垫层

分享桩基承台构造详图资料下载

桩承台3号和4号钢筋是怎样,广联达如何在桩承台输入箍筋

桩承台

三桩承台布置

随机推荐

沈腾结婚8周年纪念日王琦变贾玲合影幸福满满岳母惊艳登场

《少年的你》易烊千玺分享拍摄感悟:不忘初心

牵老子的手情侣表情包

创意料理美式寿司培训总部收费标准及简介

2k,科比的无解背打转身后仰

原创原创最惨美男子马天宇是如何进军娱乐圈的

双人通行时楼梯段的宽度通常为().

名侦探柯南:怪盗基德和柯南二人谁是"受"?这5张图告诉你真相