[分享]双排桩支护结构在软土基坑中的应用及分析

相关图片

深基坑开挖中双排桩支护受力性能影响因素分析_庄心善

有限土体基坑双排桩支护结构计算分析

[论文]深基坑双排桩支护结构设计计算方法研究

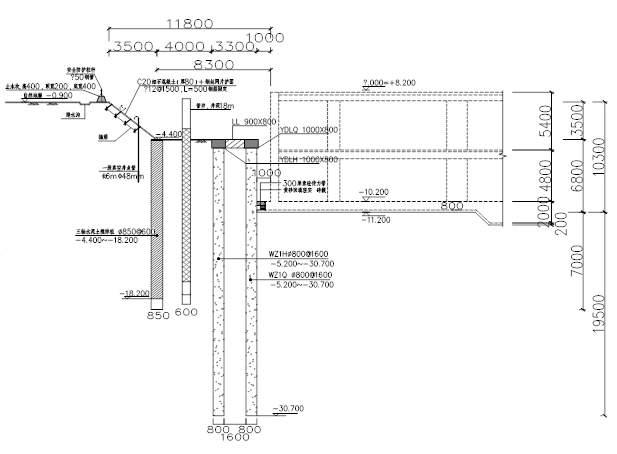
基坑支护图片.docx

浅层放坡 深层双排钻孔灌注排桩支护方案

随机推荐

闺蜜头像两人可爱q版闺蜜头像可爱仙气一对两张

华晨宇壁纸一身樱花粉西装展现清新俊雅的少年形象

谢谢动态表情包80p_表达感谢的表情包大全

江苏太阳能光伏配件采购

白衣舞剑温客行也万转啦!恭喜加入温温万转博豪华大家庭!

mew gulf - 堆糖,美图壁纸兴趣社区

许凯新剧《承欢记》上映了.腾讯视频全网独播,许凯的剧必追! - 抖音

已有全世界最好的男朋友背景图 抖音热门好看的又很唯美的素材