水池做法详图二

相关图片

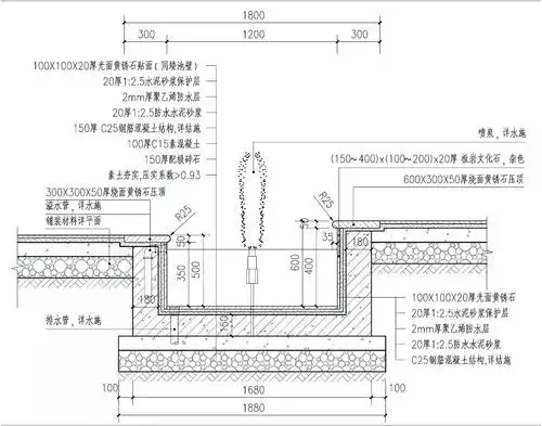
水池详图.

泳池扶手做法素土夯实>920厚6%水泥石粉渣100厚c10混凝土c20钢筋

跌水池做法,本工程资料为dwg格式,图纸包括:各版块详细示意图 ,内外部

景观园施跌水池做法详图设计

某儿童戏水池设计cad施工详图

随机推荐

白衣或者黑衣,而黑色系服饰往往是人物角色黑化或心境发生转变的象征

杨紫紫色配适度##那些年的紫衣杨紫

喜欢的赶紧收藏吧_做法_感觉_花菜

刘德华澄清:我老婆不叫"朱丽倩"

露出额头和发际线,精神十足,而谢霆锋的头发蓬松,质量也很好

人如其名刘太阳,130斤的体重不减肥,身材照样好

简约影楼相框婚纱照大相框婚纱影楼48寸相框墙挂照片墙加工定制

种植牙广告