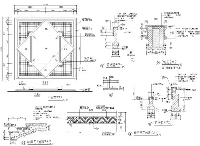
[广东]碧水天源高级住宅区全套景观施工图设计(同济)

相关图片

某休闲公园园林景观施工图 a-4 广场平面

办公楼屋顶花园景观设计cad平面施工图

某小游园环境景观设计cad总平面施工图(含设计说明)

公园设计全套施工图(含:绿化布置图,停车路面做法,木栈桥)-公园景观

[施工图]某公园全套景观施工图

随机推荐

华仔抽烟的样子更帅!

来自杨洋今日活动的新造型 ~ 以一身白色西服 look 出镜品牌发布会

阿里郎全新单曲《梦中女孩》暖愈上线唤醒你心底的梦中记忆_手机搜狐

年轻时候的张柏芝,颜值真的是绝了!

暂未定制 向ta提问私信ta 如图 磅秤调成一样的状态,然后在挂90公斤的

11月1日是「夏目友人帐」的场静司的生日 9

花千骨》【花千骨】妖神

炫美脚大赛##晒晒脚丫子照##美脚美甲