冬眠的小蛇的简笔画

相关图片

冬眠动物蛇简笔画 第1页

冬眠的蛇简笔画冬眠的蛇简笔画

小蛇在冬眠.

冬眠蛇简笔画 冬眠蛇的简笔画

深圳挖出50斤冬眠巨蟒,市民纷纷围观拍照,冬眠蛇真的不会咬人吗

随机推荐

元宵节快乐——王源壁纸.#王源 #王源壁纸 - 抖音

马雅舒(图片来自 ic photo)

原创魏大勋紧搂杨幂纤腰刘恺威之外无人能比他们更亲近

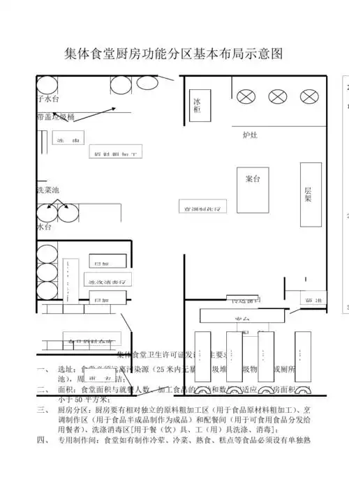
集体食堂厨房功能分区基本布局示意图

小学英语牛津译林苏教版四年级下册(新版)unit5 seasons第一课时公开

英语原著阅读傲慢与偏见完结

女新款马丁靴夏季真皮厚底短靴网靴英伦透气网纱镂空凉靴薄款爆款

琴谱dancemonkey抖音爆火tonesandi含简谱