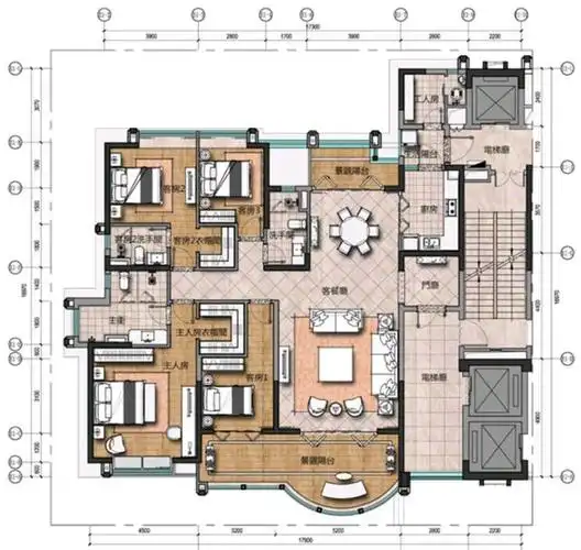
新古典220方大平层

相关图片

大平层集锦51

户型优化:165平大平层平面方案!炎客户需求: 1:保留四房 - 抖音

作为一个客人该如何参观这套220平方的大平层呢?

莫川新作壹方玖誉丨389m05顶级大平层既绅士又有温度的家

宝能城206平米大平层现代极简风格效果图

随机推荐

别样成长之路:周冬雨与易烊千玺演绎《少年的你》

大女人&小女人

74自截华仔港风头像

关晓彤生图身材比例

小提琴协奏曲《梁祝》主题曲

最新款木工台锯10寸选xinnada新纳达 t8复合 板45度切割

秦海璐:不办婚礼也要嫁给王新军

素材分类单人模板