施工图深化设计-柜体细节做法分享2

相关图片

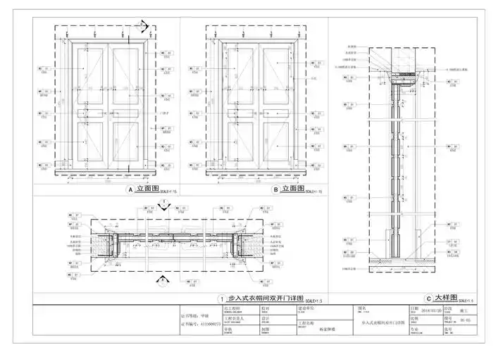
专业室内设计施工图深化

施工图深化设计分享1#效果图 #效果图表现 #建筑图纸 ## - 抖音

三视图施工图深化

酒店无障碍客房施工图深化设计

室内设计样板间设计如何深化节点大样图

随机推荐

因此,对于谭松韵来说,婚姻或许只是她人生中的一个细节,而不是定义她

韩雪一身露肩白衣高冷气质写真_美得_网友

梨形脸,因为脸型就像梨形一样.

贺峻霖临摹

个性的男生帅气壁纸,手机锁屏,男生手机壁纸_留言_下期_来自

黑人小哥吐槽"无用科普"走红,网友怒赞:脑子不要请捐出来!

林更新《机器人争霸》终极战斗即将打响,从萌新团长到策略高手,林更新

圆形线描地图浙江城市系列一头像自取