风格现代风格小区万科都市花园面积200m05户型四居装修总价71万2016

相关图片

该商户其他案例同户型同风格同价格更多 >家居百科装修合同装修风格

是顶楼复式,约为200平米,装修后为婚房使用,整个房子南北方向较长

户型图

200平米优雅完美大户型,南向阳台长度超过9米

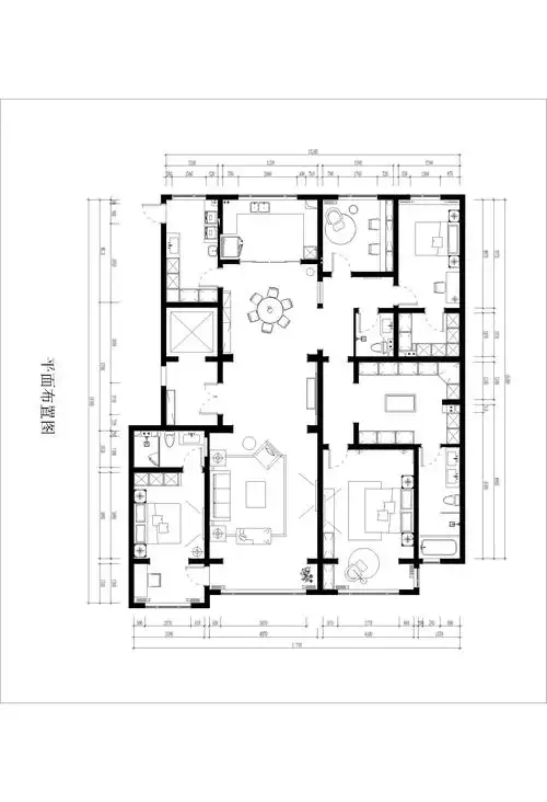
全屋户型图

随机推荐

23m上传时间:2020-06-16壁纸标签:个性星座壁纸封面图个性 星座壁纸

手影子牵手在国家银行的情侣的影子照片

日本潮牌衣服品牌logo大全(日本潮牌大全logo及名字中文)-第1张图片

水墨古风禅意打坐冥想男生头像.#古风头像 #优质头像 #国风 - 抖音

苏打绿我好想你吉他谱

昕薇杂志 肖宇梁真是天生衣架子,多跳的颜色都能驾驭

自由泳改进真的很难做到不翻手腕

【柳书生的婚礼04】姜国来了!