希望许龄月和男朋友幸福快乐,也期待许龄月带给观众更多精彩的作品.

相关图片

许龄月与男友合照5月20日,许龄月发微博官宣恋情,分享四张与男朋友的

许龄月

许龄月是谁 许龄月曾舜晞什么关系 养眼cp私下相处竟是这番场景

独家对话丨许龄月爱要大声说出来谈感情更倾向程致远

辛家亮(牛骏峰饰)作为承欢的男朋友,隐藏自己 " 富二代 " 的身份以期

随机推荐

最简单的王源简笔画6

"罗云熙字体"走红,比奶酪体还上头,阅卷老师看到爱不释手_高考_时候

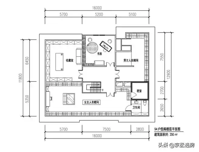
九章别墅(北京九章别墅楼盘)

恒中天 玻璃雨棚 门头遮阳棚 铝合金不锈钢架构 上门安装 工厂直营

色浆内外墙乳胶漆调色涂料树脂泥纯色精浓缩红黄蓝绿黑粉【价格 图片

csgo官箱出金期望过低?平民玩家何时才能的期望所盼?

男士短发烫发

大年初三的阿拉伯人