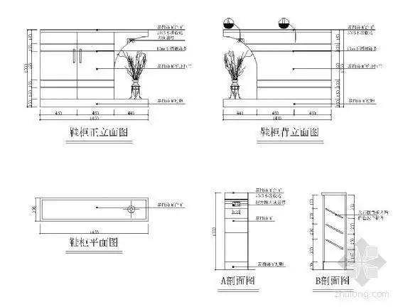
[北京]简欧大户型鞋柜详图

相关图片

附上设计图开门就是客厅@设计师荣烨入户后,客厅一览无余,外卖小哥送

分享家居鞋柜详图资料下载

前面有院,业主直接从院内走南阳台入户, 在入户处设立一个应季鞋柜

自己请师傅这样打鞋柜,比商场买的实用多了,晒晒

一平米变十平米|客厅|户型|鞋柜|橱柜|储物柜|电视背景墙_网易订阅

随机推荐

疑似否认与张翰复合《偶像来了》被大家熟知的古力娜扎,又因曝出和

绿毛怪格林奇玩票大的偷走圣诞

黑白漫画风埼玉桌面壁纸

黑白背影头像

唐嫣真赫本公主惊艳全场,一袭黑色露背礼裙太美了吧!_礼服_造型_舞台

孙小果被执行死刑前现场视频曝光含泪痛哭当年复活内幕曝光

欢乐颂-完整版双手简谱预览3

mewgulf缪糕 我真的醒了!谁来告诉我一下我有没有看错 - 抖音