万科大中江南院子

相关图片

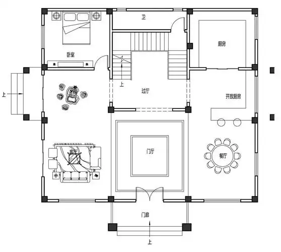
江南院子户型图-南宁搜狐焦点网

万科江南院子平大房卫业主说送全屋定制家具家电

拙政江南

中式庭院设计图#(中式庭院设计图)#(江南庭院风格平面图)#(苏式庭院

石榴江南院子价格,周边交通配套测评,石榴江南院子优劣势分析-张家港

随机推荐

眉上刘海,齐嘴短发

所有豪门阔太都是郭式旺夫脸百年一遇面相到底啥样

当一只小猫咪是什么感觉?治愈又致郁的 《stray》(迷失)试玩

原创贵公子马伯骞下乡体验记住别墅穿布鞋骑电车个人版向往的生活

【邪恶动态图】--好空虚好寂寞_爆笑图片_经典文集网

【高叶】大嫂气场强大!

网红对比,中国靓,泰国妖,美国恶搞,日本那?

综上所述,张国立被偷拍的照片事件引发了人们对明星健康和隐私的思考.