抖音图文来了 厨房各功能区域立面尺寸详解,不同区域高度尺寸 - 抖音

相关图片

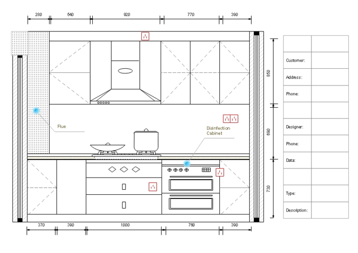
3u型厨房cad图纸-立面图1

厨房立面

包含欧式中式现代cad厨柜图纸素材资料,室内厨房橱柜装修设计平面立面

[分享]室内厨房cad立面图资料下载

各种厨房立面图符号,一起打造私人厨房!

随机推荐

可爱的二次元猫咪少女漫画涂色图片免费下载-红豆饭小学生简笔画大全

杨幂不愧是街拍的神穿短袖戴绿帽子素颜惊艳机场大长腿太辣了

易烊千玺漫画版萌图头像

ins风拼接手机壁纸暗黑

鞠婧祎高清壁纸头像(三十六)[比心]

李雪健全家照:他是德艺双馨的老艺术家,妻子貌美儿子帅气是学霸

熬夜成习惯不出半年身体会回馈6个变化

多彩壁纸545期|可爱小男生插画壁纸,有木有像你的男朋友呀