杨幂私服##杨幂上海机场穿搭##今日星拍放送

相关图片

全球品牌代言人杨幂超话身穿3336363436出发前往#巴黎时装

女星杨幂近日一则机场私服穿搭分享,橙色破洞针织衫搭配运动鞋,下身

杨幂机场图真多

杨幂更新了10月2日机场私服,巴黎时装周之旅暂告一段落,带着全球

【杨幂】考古 机场私服秀 晚安啦!我的宝贝

随机推荐

原班人马回归有望,观众却人间清醒_陈伟霆_张艺兴_赵丽颖

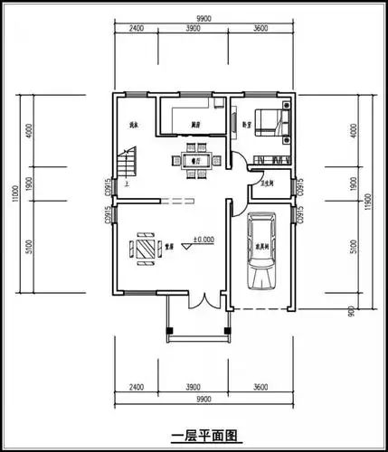
米x12米 造价25万经典大气自建别墅图纸,附各层平面布局_农村房屋设计

整流桥3510专场

小女生的白丝袜故事图片 _飞翔号

动漫头像女生霸气冷艳古装二次元

桂龙药膏

时代少年团《绝配》歌词完整版 绮诺~ 时代少年团《绝配》歌词完整版

魔兽世界:军团再临古尔丹4k图片,4k高清游戏图片,娟娟壁纸