独立基础及满堂基础钢筋混凝土工程

相关图片

透水混凝土剖面图

特色景观灯柱节点详图(钢筋混凝土结构)

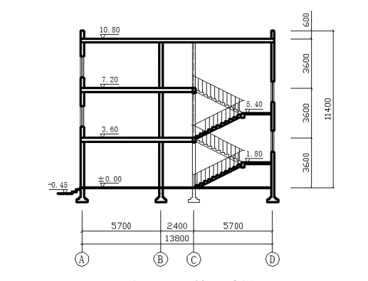
结构剖面图

大体积混凝土施工工艺 所示:图1 大体积混凝土测温点设置剖面示意图 2

各主要构件的关系从剖面图图10-17中可以看出,各层的钢筋混凝土楼板

随机推荐

周杰伦,昆凌"世纪婚礼"王子与公主的浪漫童话!

高颜值女神李沁再晒美照,一双美腿吸睛无数.没有架子接地气

烟雨江湖杀牛路线图

之前《doctor》热播的时候,朴信惠还是空气刘海大长发呢,大长发披在肩

最后,附一张自己深沉的背影吧.

斗罗大陆:小舞妈妈柳二龙精美壁纸来了,第六张最漂亮,玉小刚真有福气

ps双重曝光效果海报教程来啦,营造出时空交错感! #海报设计 - 抖音

关晓彤的身高可以说是非常出众的,她拥有一双修长笔直的大长腿,令人