美式古典三居室住宅装修设计卧室立面图

相关图片

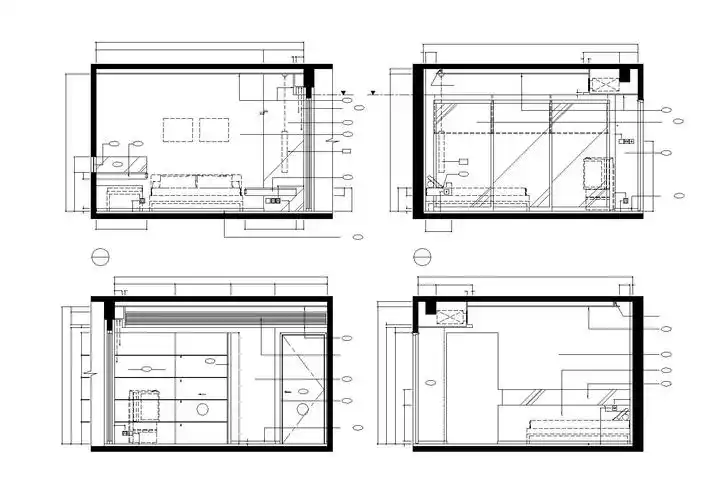
卧室立面图

24.别墅三层主卧室立面图-陈文进的设计师家园-三层主卧室立面图

卧室立面图本案定位于新中式风格,以新东方主义作为视觉定义.

【主卧室床靠背立面图】

卧室立面图

随机推荐

《不能说的秘密》魔天伦前十三场高音质合集

朴灿烈唯一官方门面

刘德华40高温穿皮衣拍广告酷玩肥皂泡

可爱猫咪头像高清萌萌哒微信用猫做头像的女人很可爱

90后女艺人_生活资讯_资讯中心 - 265学校教育网

火箭少女101·赖美云

画画虞书欣

体操女神张豆豆比赛照,身材苗条,皮肤白嫩,空中一字马太惊艳!