请给我家玄关设计点意见_平面研讨_室内设计联盟 - powered by discuz

相关图片

【齐家居美】玄关空间设计分析,干货!

开门见厅如何设计玄关,这5种方案,1㎡变10㎡太好用

玄关这样设计就对了!

邻居家的玄关为什么都比你好看,看看人家的设计图纸!

邻居家的玄关为什么都比你好看,看看人家的设计图纸!

随机推荐

小黄鸭我哭了我装的搞笑表情包斗图表情

王源也太瘦了吧当他穿白衬衫配牛仔裤时腿好像一对竹竿

部落冲突阵型之八卦阵-黑羽coc,部落冲突阵型分享链接,部落冲突阵型链

泉州美食宋小谨泉州菜南益广场

蔡徐坤宋雨琦是什么关系蔡徐坤宋雨琦恋情是真的吗

戴上就舍不得摘盘点那些黑科技眼镜

心静如莲|国家一级美术师刘凯焰书法作品创作实拍《心静如莲》

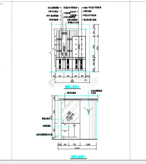
本图纸为:某地各式玄关立面详图下载cad图纸,内容包括:玄关立面图