跌水水池水景设计cad施工图

相关图片

东山头村公园环境绿化施工图设计(cad)-公园景观-筑龙园林景观论坛

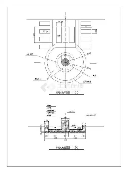
某带花坛圆形雕塑喷泉水池的施工图

[广东]观澜湖高尔夫球会景观设计v2区全套施工图设计

太平洋城环境景观施工图设计(包含35个cad)

某广场水池施工图

随机推荐

肖战2021跨年晚会

1011mm澳白海水珍珠吊坠18k金砖石镶嵌

一场燃爆肾上腺素的高空大戏------ 摩天营救>

虎牌jkh-a10c(家庭用)ih电饭煲使用说明书:[1]

阿鼻地狱即无间地狱

碎花格子平铺桌面碎花格子格子紫色背景

广汽丰田 雷凌 2017款 1.8gs cvt精英版

广西电视台节目主持人(广西电视台节目主持人图片大全) - 知识分子