aa a 点缀蓝色背景字母标志设计字母a灰色橙色字母,标志图标设计适合

相关图片

卡通手绘英文字母a

手绘红色英文字母apng素材透明免抠图片-艺术字集

创意字母a图形建筑主题logo商标设计模板architecturealetterlogo

图片 图标元素 > 【png】 a字母矢量logo下载

"字母a"

随机推荐

前几天十一周年的q版发发#exo#画画 #q版人物 - 抖音

刘耀文年度新人##刘耀文首个电影类荣誉

过生日图片

2,xx高速公路新建段沥青路面主要结构形式详见下图:图11.

一个人在雨中图片伤感_唯美意境伤感图片 - 伤感说说吧

用百度识图功能鉴别网友头像图片真假

在logo基础上展开设计,合理布局企业文化墙,针对各个版块有侧重点设计

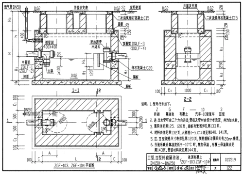
隔油池图集[1]