钢结构接地

相关图片

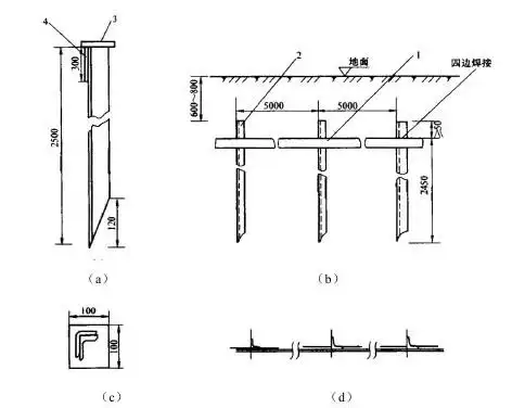
水平接地体(圆钢)焊接示例

深800mm,用φ14镀锌圆钢作水平接地体,l5*50*2000镀锌角钢作垂直接地

防雷接地如何做接地体有何要求

镀锌角钢接地极 角铁接地棒接地体接地柱 电力路灯幕墙安防接地

镀锌钢管接地极 接地镀锌钢管 热镀锌接地装置 镀锌接地体接地棒

随机推荐

温碧霞堪称长卷发女神穿抹胸连衣裙配腰带亮相57岁美得太惊艳

鞠婧祎晒公主切造型随拍酷飒有型 对镜wink脸颊比心好甜_影视资讯网

【h645】科比g款/只要心够决/nba 篮球励志/牛皮纸海报51x35.5cm

达芙妮daphne甜美休闲拼色蝴蝶结坡跟鱼嘴凉鞋

会客厅场景矢量图图片

中国首席男模胡兵太帅被英国富婆看中

看图识病多形红斑

真实的身高差28cm是这样的视觉效果吗