演员殷桃前夫锒铛入狱照顾父母晚年45岁仍单身无儿无女

相关图片

只要她们愿意,花期想有多长就有多长,四五十岁演少女都不在话下.

回顾:明明一把年纪能当奶奶了,非要演18岁少女,这些女星不知羞吗

女演员|影视界|演艺生涯_网易订阅

50多岁还没有嫁人的7位女明星,每一位都是盛世美颜

演员刘涛是整容了吗?45岁的她依旧少女,越来越年轻!

随机推荐

虞书欣头像原修wb惊鸿潮搭

汤珈铖结婚了?这位豪门初代国民老公,才是真正九亿少女的梦 - 知乎

林心如无滤镜显老5岁,穿红色中国风礼裙亮相,苹果肌下垂太真实_衣服

电影截图# #台词

涨姿势的法国文化(一):法国作家维克多61雨果

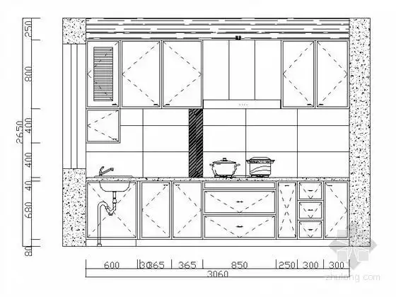
各式厨房立面cad图块下载

图文伙伴计划 藤椅天然真藤摇椅躺椅午睡藤编摇摇椅老人家用阳 - 抖

打个网球,一起啊!#二次元 #清纯甜美 #美少女 #大长腿 - 抖音