仅仅花了9万元,就把50平米的二居室装修的美轮美奂!-新力琥珀园装修

相关图片

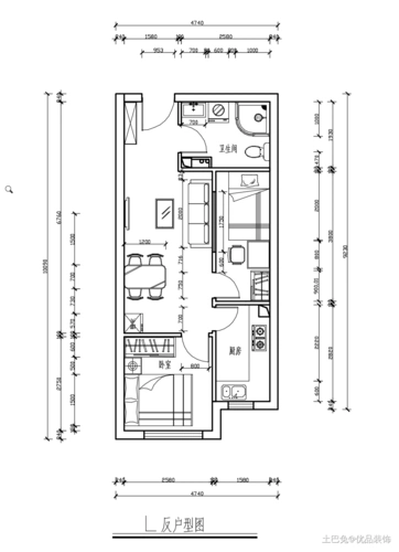
50平米小户型单身公寓装修设计平面图

50平米温馨公寓恋家现代简约设计图片赏析

50平米大开间求大神设计,最好改两居

50平米舒适二人世界居然能开party,还有书房和影音室,首次公布改户型

深圳汇福花园2室2厅1卫50平米户型图说明深圳汇福花园2室2厅1卫50平米

随机推荐

最近悄悄爆火的短卷发|短发|发型_网易订阅

【图】九一神雕侠侣演员表都有谁 影帝影后让你看个够

她和柳岩争一姐,投全部家产给老公圆梦,如今老公成奥斯卡评委!

头条问答 - 《沙海2》会更换主演吗?(10个回答)

今天是只肉嘟嘟的小兔子,毛茸茸的,好可爱! #二次元# #动漫

王一博赤脚跳舞,这次居然没有唱歌,回归舞者的他更吸引人

泰国娱乐圈当红泰剧偶像演员齐聚!

中国最美景观大道g318_高清图集_新浪网