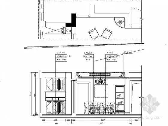
中餐厅立面图

相关图片

精品现代简约风格三居室室内装修施工图餐厅立面图

餐厅立面图1.jpg

大厅立面图

餐厅立面图

[宜兴]时尚优雅艺术茶餐厅设计立面图

随机推荐

几大男神抽烟片段配上神曲《time》

碓氷拓海 #碓氷拓海鲇泽美D

好看的城市唯美夜景图片桌面壁纸高清大图预览1920×1200_风景壁纸

带你一分钟了解戛纳电影节

袁娅维明星湖南卫视我是歌手唱歌深情闭眼gif动图_动态图_表情包下载

前刺男生发型男生摩根烫

择木而栖by卡比丘

莱德图片-汪汪队的图片-话本小说网