横屏高清壁纸,适用于ipad,电脑等,让人眼前一亮

相关图片

横屏高清壁纸,适用于ipad,电脑等,让人眼前一亮

横屏高清壁纸,适用于ipad,电脑等,让人眼前一亮

求高清壁纸

哪里可以找到好看的ipadpro壁纸

有什么壁纸能让 ipad 横屏和竖屏都合适?

随机推荐

简约英文字体创意设计#logo设计 #商标设计 #英文log - 抖音

华晨宇女儿正脸照曝光,看到照片后,网友:确认过眼神,是亲生的

玄彬孙艺珍

止语静心饮食文化有限公司题字止语表示少说话静心表示让心思沉静止语

李建群去世,生前与导演陈家林同居28年无名分,成终身遗憾

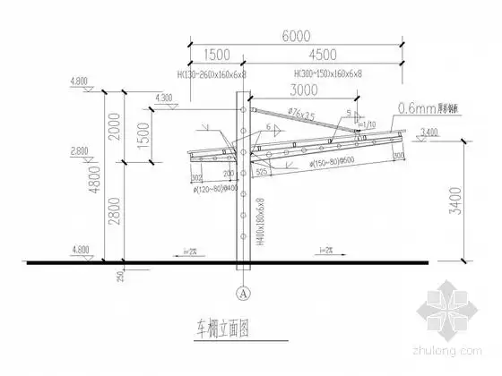
车棚立面图

史莱姆头像

唐三