筏板基础(三) - blackpanda - blackpanda

相关图片

筏板配筋的布置方式问题如图

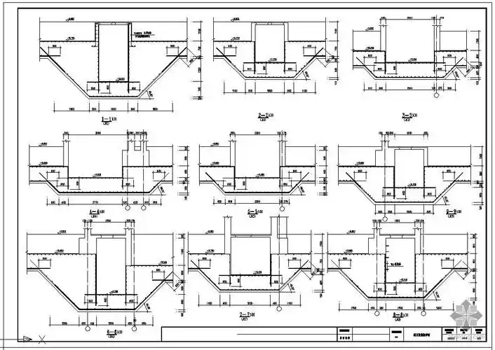
某筏板基础底板配筋节点构造详图

请问下这个筏板配筋的钢筋怎么算量是在其他钢筋输入还是单构件输入啊

板钢筋配筋原理

各位老师请问如图基础筏板底板向上向下加厚应怎么绘制谢谢

随机推荐

王源 #tfboys #约稿 #q版人物 #头像约稿 #周边 #明星周边

潮图丨没人能抵挡住说唱歌手的魅力吧!

蔻驰coach奢侈品女士专柜款白色拼色pvc配皮经典logo单肩斜挎包相机包

宫崎骏龙猫图片壁纸_动漫龙猫电脑壁纸_三千图片网

2021旺运又旺财的头像 高清好看的2021微信最新旺财头像图片

【爱情宝典】风筝误张静初cut_哔哩哔哩 (゜-゜)つロ 干杯~-bilibili

凡世界男士凉鞋新款夏季潮流百搭牛皮舒适轻便防滑休闲耐磨沙滩鞋子

男士锡纸烫 #男士摩根烫 #男生纹理烫