ins风个性英文字母墙贴纸网红奶茶店铺装饰女服装店镜子贴画hello

相关图片

手绘字hello在黑色手写

卡通字体hello

文字绿色hello图片

网红hello字母粘贴贴画房间卧室床头墙面装饰墙贴

c4d风格白色hello立体字体图片免抠素材

随机推荐

男生剪什么发型好看这6款发型清爽潮流

阳光大男孩超级帅气的魅力男头 成熟稳重有内涵帅气的男生头像_男生

古力娜扎和张翰同居三年被抛弃后,时隔六年,孙红雷一句话彻底揭开娜扎

刘晓庆和宁静都收服不了的浪子为何被一个悍妇给拴牢了

发型不论怎么剪,最百变时尚的还是波波头,年龄大小都适合

深山采药,毒蛇出没,山体滑坡,危险重重_手机搜狐网

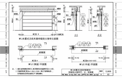
12j609:防火门窗

车厘子 喷枪渐变.敢相信这是顾客的本甲吗,做美甲不光光是为了 - 抖音