全套螺丝分类iphone66p7p8pxsmax主板螺钉

相关图片

机身螺丝分布 主板超螺螺丝 含尾插螺丝 适用苹果7g/7p/8g/8plus

从小白角度说说如何记住苹果手机螺丝位置

苹果iphonexs螺丝位置图

苹果全套分类螺丝 iphone6 6sp 7 8p x xs max主板屏幕 sfd 苹果全套

2020年为了撑到iphone5g时代到来让5年前的iphone6splus继续满血复活

随机推荐

蔡徐坤的粉丝很优秀看了这些漫画网友舍不得黑他了

横屏版.#二次元 #萝莉 #卡哇伊 #无任何不良引导 #壁纸 - 抖音

动画片卡通小动物简笔画可爱

外国人翘下巴的图片

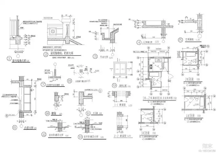
67某八层坡顶多层住宅楼建筑施工图施工图下载

冲突融合变化法国黑管吹奏时间的法则

直击臭名昭著的邪教组织,澳洲竟也有!

43/85 毕业于华东师范大学的校花张青青vvvictoria在微博