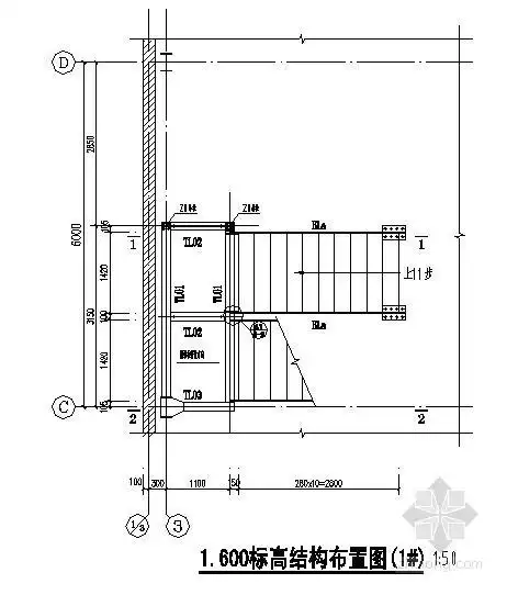
建筑楼梯踏步做法详解图

相关图片

图3 预制装配墙承式钢筋混凝土楼梯悬臂踏步式预制装配墙悬臂踏步式

大理石楼梯如何设计既美观又实用

[分享]楼梯构造详图cad资料免费下载

才可以加工出生动,美丽的追纹图案楼梯踏步.

立即下载立即下载内容简介: 园林景观小品特色台阶坡道cad施工图合集

随机推荐

这种野草,在民间人称苦草,别名白毛夏枯草,散血草,破血丹,青鱼胆草,苦

新娘造型低发髻一款新娘通用的气质盘发

70岁叔叔说这是他吃过的最好吃的饺子,馅真香,吃一次就上瘾_酸菜

民国老坛子

关于说朋友虚伪的句子 关于说朋友虚伪的句子虚伪的朋友还不如公开的

15平卧室改造计划陷入午后轻轻软软美好

黑白照片

益智迷宫图案墙贴画装修镂空装饰玻璃门幼儿园防水背景趣味墙贴纸