三小只的第一部古装剧你觉得怎么样

相关图片

tfboys三小只古装扮相各有各的味道但谁的扮相最有感觉

三小只客串出演

吾家有儿初长成系列之青云志tfboys三小只古装秀,翩翩少年,美轮美奂

tfboys三小只古装扮相,各有各的气质,但谁的扮相最有感觉_王源_易烊

tfboys三小只的古装照,陌上人如玉公子世无双

随机推荐

李现杨紫甜蜜拍杂志看到两人戴的戒指确定只是纯兄弟

二人情侣头像双人版 甜蜜高清双人头像一左一右图片

30岁之后选择这六款减龄发型,瘦脸显气质,谁见谁说美!

鹿晗最新策划代言来了,银色的头发配上好看的配饰,真是太养眼了_表演

不顺和挫折终将过去,2022收拾心情,努力向前冲,我们一起加油

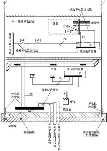
建筑防雷接地工程图的识读方法

适合初夏剪的几款男生发型,清爽帅气,让你想不帅都难!

2018家居产品鉴赏