套内格局完全不同的三款四房户型,你更喜欢哪一款呢?

相关图片

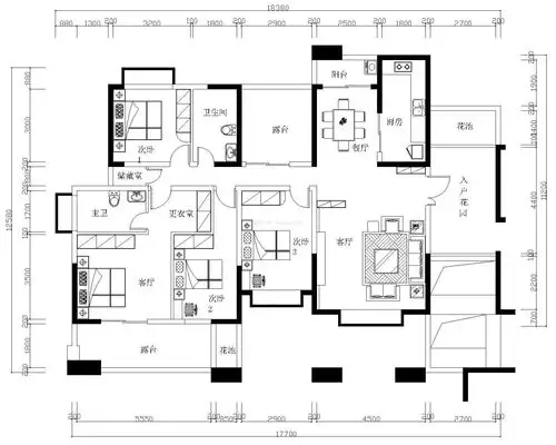
十大最佳户型图

端午小长假粽横驰骋之际 东营十大楼盘约您共度佳节

十大最佳户型图

南宁凤岭南最好的户型

三室两厅最佳户型图

随机推荐

男中分刘海短发韩版假发男生男士全头帅气男孩短发中分刘海韩版直发

椰树 海边风光 苹果mac 5k高清官方图片,4k高清风景图片,娟娟壁纸

景浩不哭 你一哭我的心酸酸的 像针扎的一样疼#易烊千玺 #奇 - 抖音

回收大牌首饰宝格丽全系列首饰8月行情

任嘉伦的第一部电视剧中有他的妻子聂欢

唯美卡通夜晚城市背景

关键词 : 佛教,标志,设计,图标,图案,平面,创意,咸安佛教,佛教logo

松下铅酸蓄电池lc-r1233 12v 33ah电瓶ups电源配套安防太阳能