[分享]cad鞋柜图块资料下载

相关图片

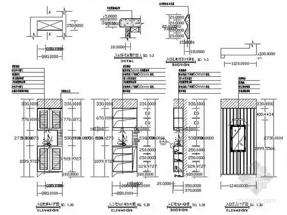
书架和鞋柜的立面图,给大家分享出来参考参考.

分享家居鞋柜详图资料下载

玄关鞋柜如何设计尺寸玄关鞋柜设计尺寸多少合适

[分享]鞋柜玄关dwg资料下载

你家玄关鞋柜好用吗15个玄关鞋柜设计建议每一个都很重要

随机推荐

杨紫发了麦承欢##杨紫小夭

王一博早期的白牡丹照片,一头金色头发,看起来好好看_感觉_少爷_贵族

这条裙子只有戚薇敢穿,七彩流苏搭配米妮发箍,比lucky还俏皮

好乖 好奶 超可爱的烁烁#王一博[话题]# #治愈系笑容[话题]# #王一博

700平米大平层,超大活动场,直播跳舞干啥都行

3月22生两个儿子的来集合989898#最美全家福照片#世界 - 抖音

04-左小青饰方静.jpg