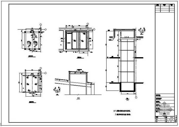
一,工程概况:本施工图为康乐健身房增设垂直电梯工程.

相关图片

广日电梯井道土建图

代做老旧房改造 加 电梯井钢结构设计 施工图 建模 计算书

1600mm1500mm土建井道小型家用电梯设计图纸

某办公楼外挂电梯井结构设计施工图

[分享]钢结构玻璃采光井施工资料免费下载

随机推荐

开创国产喜剧新纪元的小成本黑色幽默喜剧《疯狂的石头》到底怎样

聂远前妻王惠为爱放弃事业4年婚姻换来丈夫净身出户

她是国家一级演员会31国语言当红时被老公抛弃晚年成女总裁

我的宝藏女孩78程潇

女孩子真的越开心 就长得越好看#分享照片 #天蝎座 - 抖音

任妙音女神的一首 《最亲爱的你》欢迎围观@{uid:1502349662339070

性能版的捷豹xkr-s gt!

戴拿#戴拿奥特曼 #壁纸 - 抖音