手绘海报草图

相关图片

垃圾分类海报/手绘海报/马克笔 临摹请艾特,标明出处

图文伙伴计划 #手绘pop海报 - 抖音

手绘社团招新海报|手工艺|其他手工艺|懒虫质造 - 原创作品 - 站酷

迎新季| 学长学姐手绘海报欢迎山服小萌新

海报手绘

随机推荐

一个人物戴着黑色的绅士帽,脸是白色的,然后脸上有着很诡异的笑容

王俊凯让人心动的n个瞬间 #王俊凯 #少年总是发着光 #超 - 抖音

d韩娱八字眉to眼下痣爱豆的那些魅力point

身体有这些富贵痣腰缠万贯百里挑一的贵人命

天使恶魔翅膀简笔简笔画q版天使与恶魔小恶魔和小简笔画小恶魔小天使

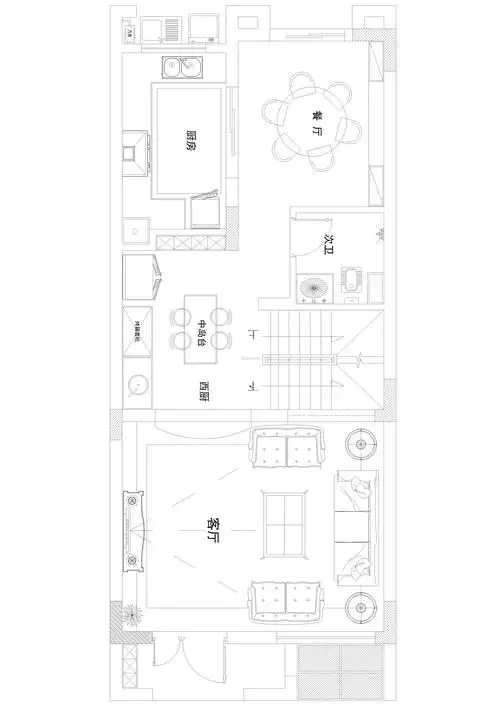
300平别墅户型图大全

一些原图需要自取 93私用07商#凹凸世界 #凹凸世界乙女 #见习

女高音歌唱家鲜于越歌全国巡演音乐会在我校举行