一件黑色毛衣 两个人的回忆#周杰伦#黑色毛衣#周杰伦壁纸 - 抖音

相关图片

黑色毛衣-周杰伦

黑色毛衣-周杰伦(无伴奏版)

再说我爱你,可能你也不会听!周杰伦 黑色毛衣 爱情 音乐

【hi-res无损音质】周杰伦《黑色毛衣》无损音质经典歌曲最好听的版本

《黑色毛衣》-周杰伦

随机推荐

56岁郑伊健被偶遇,皮肤下垂胡子拉碴身材大变样,太像古惑仔了

吴亦凡帅气撩人写真图片桌面壁纸

玉小刚最得意的徒弟唐三却出了意外,当时唐三听了玉小刚和柳二龙的

【转载】赞女性

乱世佳人:斯佳丽和玫兰妮,一对乱世姐妹花,谁是最坚强的那个人

赵丽颖上热搜,因被曝"知三当三",引发网友热议,真相到底如何

可爱的 魅惑的都是你#邓伦 98

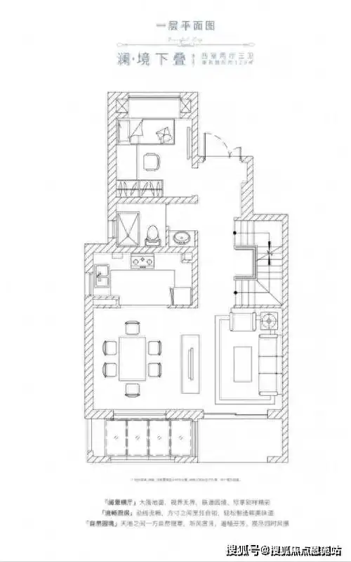
大华锦绣四季售楼处电话大华锦绣四季最新详情房价户型24小时电话解析