[海南]三亚154㎡现代四居家装样板间施工图 – 五号云

相关图片

[南昌]现代简欧四室两厅室内装修施工图-住宅装修-筑龙室内设计论坛

现代中式风格三层别墅装修图(含实景)-住宅装修-筑龙室内设计论坛

望江府邸欧式风格别墅室内设计施工图及效果图-室内装修户型图-筑龙室

[上海]维景酒店公寓翻新a b样板间施工图-宾馆酒店装修-筑龙室内设计

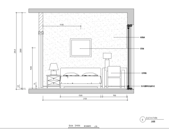
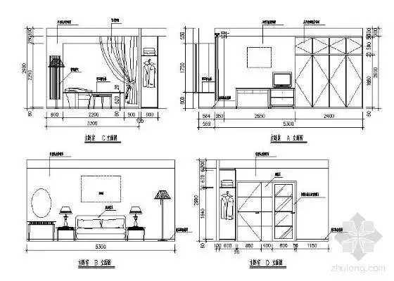
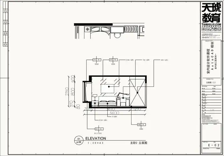
卧室立面设计图-室内节点详图-筑龙室内设计论坛

随机推荐

《雪山飞狐》的意义何在?

原创蔡徐坤路透照流出穿白色运动服亮相干净清爽少年感满满

7-8岁儿童线描创意画《大嘴鸟》创意美术线描 创意线条画 - 抖音

关注 陈瑶 胡飞鸾 柜中美人 古装美女 狐狸精 评论 收藏

中戏93表演班班长王千源黄金配角李乃文还有狂飙中的他

明星们的赤足美图系列01大图抓紧收藏

情侣头像丨适合双向奔赴的情头_xhs_感觉_什么

女孩,光着脚,沙滩,_高清图片_全景视觉