某高速公路d合同段k23340为一座桥跨结构为30m的连续箱梁桥高21m共计

相关图片

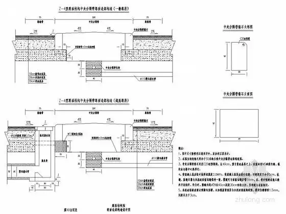
路面结构示意图

[河北]山区高速公路路面建设技术解读及新技术探索92页(ppt)

高速公路z-4型路面结构中央分隔带路面边部构造详图(超高路段)

公路路面结构识图及施工规范

路基横断面图,路基超高设计图,路基防护工程设计图,路面结构设计图等

随机推荐

王源时尚杂志帅气写真高清桌面壁纸

梁竞徽梁烈唯人间清醒王世邦edgar仁心解码2cutholy王医生你怎么天天

2019抖音好看的情侣头像一男一女抖音情侣头像一男一女2019最新

情侣纹身两个海浪98拼起来就是一颗心7815哦#情侣纹身

给我心宝纯手工缝制的《姥姥牌鸡毛毽子》带我找回了童年的记忆# - 抖

手绘卡通万圣节骷髅头

演员周璞

唯美文艺伤感非主流背景图片桌面壁纸