鞋柜尺寸一般多大最合适内部设计图

相关图片

绘制下单图---鞋柜 - 云琥在线 - 互联网视觉设计在线培训专家

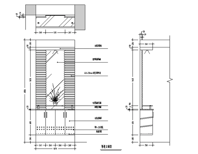
定制鞋柜平立面及内部详图施工图下载

绘制下单图---鞋柜 - 天琥云课堂 - 互联网设计在线教育平台

家装鞋柜cad图块-室内cad图块-筑龙室内设计论坛

鞋柜cad图库施工图下载

随机推荐

郭富城年轻的时候图片郭富城6岁到55岁罕见照

真敬佩谭松韵的时尚造型超百变,优雅淑女或霸气总裁皆吸睛 - 简书

爱没有方向,你就是风标,你在哪我的爱就在哪#杨洋 #机场穿搭 - 抖音

电影《兔子暴力》李庚希一眼入戏,这才是新生代的演技

包眼角day25

动漫美女高清原画卡通图片壁纸

简约文字文艺图片手机壁纸

yuansu秋季阔腿裤灯芯绒裤子男宽松直筒百搭男士休闲长裤秋冬潮流哈伦