两千米不锈钢楼梯扶手

相关图片

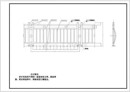
不锈钢栏杆扶手节点详图

不锈钢围栏设计详图

不锈钢栏杆扶手节点详图

一种箱式房内楼梯不锈钢扶手的制作方法

普通建筑常用不锈钢栏杆结构施工图

随机推荐

神性的浪漫9415 王俊凯壁纸#王俊凯和鸽子合照

卡通动漫,唯美,创意,动漫,清新,设计,插画,壁纸,1920x1080

qq风尚壁纸第十一辑

上海松江泗泾丽茵别墅泗泾地铁口800米精装8房别墅可办公居住摄影等

周润发 yun-fat chow的图片

汕头那个醉驾还对着交警比"剪刀手"的小姐姐,在拘留所里说

40岁林峯与29岁张馨月已领证,港台男神大都终结于网红?

现在看非常可笑但真的很好看的ipad壁纸