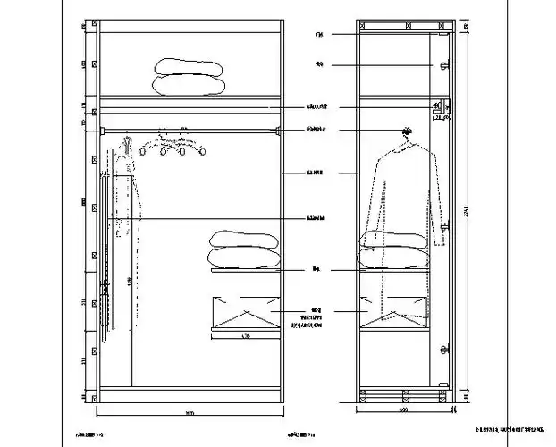
[资料] 卧室衣柜详图

相关图片

入墙式衣柜价格怎么计算

衣柜 结构与设计标准.doc

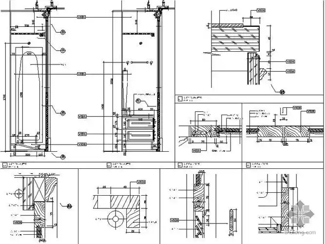
室内装修双开衣柜cad设计节点详图,内容:包括衣柜立面图,剖面图等

一种衣柜的制作方法

双开衣柜详图

随机推荐

蔡徐坤最新大片曝光,百变小王子一改浓妆霸气,羊毛小卷发超可爱

肖战王一博

插画,风景,唯美,二次元,壁纸【侵删】小院子 @伊吹鸡腿子 花卉

发型 中长发这款中长发适合长脸的男士,两侧剃短,发顶头发长度3cm左右

古典欧式沙发三视图

动漫壁纸黑夜壁纸

鬼灭之刃祢豆子高清动态壁纸

水彩画入门风景水彩画入门的基础画教程风景