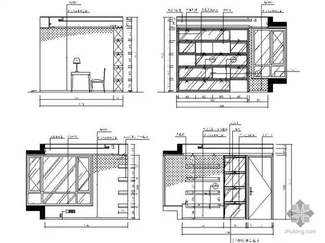
书柜立面图

相关图片

书柜立面

转角书柜(英伦1#)

专项练习—悬吊书柜

[图块/节点]宾馆家具--书柜立面

书房装饰立面图

随机推荐

tfboys手机壁纸tfboys壁纸三人竖屏高清王俊凯王源易烊千玺tfboys写真

imogen agnes regular好看的手写笔刷英文字体下载

招财童子招财进宝可爱卡通宽屏电脑桌面壁纸高清大图预览1920x1200

峡谷联盟撸啊撸景品q版盲盒ez诺手金克斯丝盖伦贾克斯模型摆件 蕾欧娜

墨小生从xxqq21转采于2015-08-06 09:39:39紫色背景图片-素彩图片大全

女儿情吉他谱c调简单版西游记插曲吉他弹唱教学

会员夏目友人帐夏目贵志高清图片cg包337p

黄明昊(justin) - 堆糖,美图壁纸兴趣社区