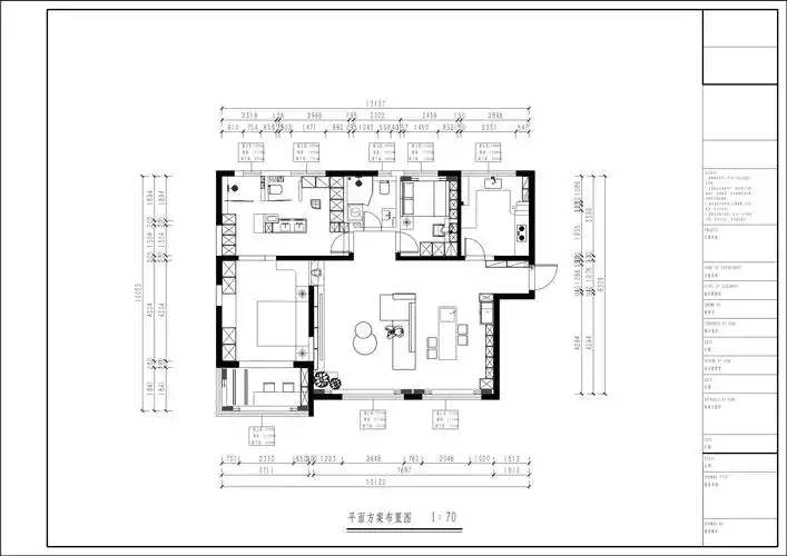
以下就是本套璀璨四季花园小区130平米三居室房子的户型图.

相关图片

全屋户型图

户型优化130平4房

如果说这是年度最哇塞的130平米户型,应该没人会反对吧?

5万设计风格:现代简约风格户型:130平方四室两厅

室内设计 #平面优化 #装修设计 #户型优化 #小户型装修

随机推荐

3d立体设计

正常的耳朵,左右对称,弧线流畅,耳垂约占1/5,与颅侧壁约构成30°角.

红色福字图片

成都市电子商务专家,四川万农合创电子商务公司董事长杨超和广元市

《跑男》节目组彻底被打脸_名牌_嘉宾_郑恺

金霞美墅幼儿园豆豆班"军事模型"亲子手工大赛

一米五的女生有个一米八的男朋友,这搭配真的很尴尬

身高172 体重150斤 肚子大 裤子m正好 衣服xl大了 给大家参考 很热呢