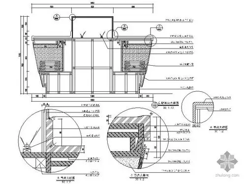
酒店自助餐厅台节点详图施工图下载

相关图片

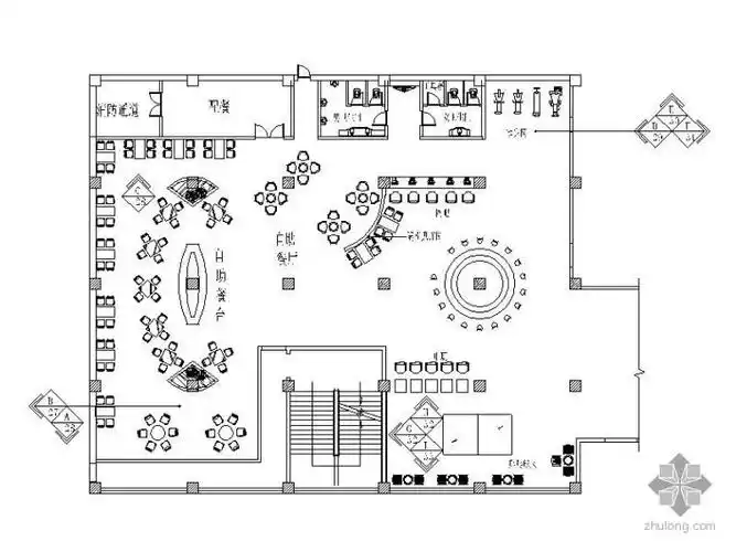
五星级酒店自助餐厅施工图cad图纸酒店cad设计图纸下载

酒店自助餐厅台节点详图施工图下载

酒店自助餐厅台节点详图施工图下载

某大型酒店改造装修施工cad自助餐区

某酒店装修工程自助餐厅台节点大样图

随机推荐

简笔画线条素材

文艺复兴时期贵族女士的发型珍珠是必不可少的装饰67676767

【歌隼】迪丽热巴吴磊屋顶抱花絮,没想到有一天一个22岁的男生接住我

笔记灵感纤细小巧如藤蔓超简单的串珠手链~所用材料:御幸米珠2mm

原创著名主持人周瑾的感情生活一直是个谜她的现任老公是谁

京都动画 冰菓 千反田爱瑠 - 堆糖,美图壁纸兴趣社区

饭拍镜头下的许佳琪,撩人的"人鱼公主"太可了!

男生锡纸烫发型