教你读懂楼梯平面图!

相关图片

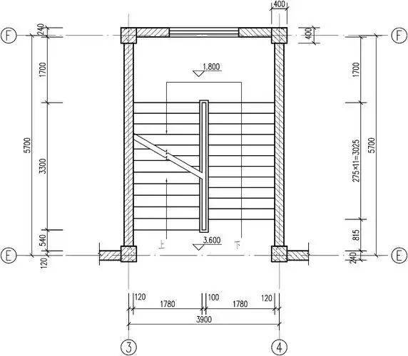
楼梯平面图

某中学教学楼楼梯平面图如图所示下列内容符合规范要求的是

二层楼梯平面图

楼梯踏步尺寸 踏面宽度与人的脚长和上下楼梯时脚与踏面接触状态有关.

楼梯的净长度计算方法

随机推荐

修颜长刘海中长短发 轻熟气质显出来

更新一组壁纸!

charles&keith2021秋季复古圆形女士时尚太阳眼镜ck3-21280417 black

dota2天陨旦活动更新内容总览 6月24日更新内容介绍

鱼人78

夏天就是要有属于自己的泳装照片!#一起来玩水 #泳池 #这个 - 抖音

绿色的薄荷叶图片第4张

小清新文艺范双人情侣头像图片 很有感觉的氛围感微信情头