国际邀请赛:每到夏天,dotaer都回来了-dota2官网合作专区-dota2激活码

相关图片

dota2全动图至今所有嘲讽槽位饰品50弹潮汐不会仰泳能玩

你打dota像cxk 盘点游戏那些有趣的嘲讽-dota2官网合作专区-dota2激活

2018年勇士令状典藏宝瓶点评 - dota2 - 刀塔官方网站 - 2023年国际

dota2dpc联赛解说@完美世界电竞

《dota2》ti9小紫本不朽三恐怖利刃饰品介绍

随机推荐

刚出道惊为天人,老了却灵气全无,娱乐圈就这么毁美人?

古力娜扎all black无袖t恤配短裤和凉鞋,清爽的高挑靓丽_黑色_时尚

女仆装,高清图片,大眼睛,高颜值 美女壁纸:女仆装大眼睛灵动美少女

白敬亭格纹西装时尚帅气写真,大陆明星-回车桌面

江疏影像被花藤缠起来了##江疏影鎏金亮片礼服

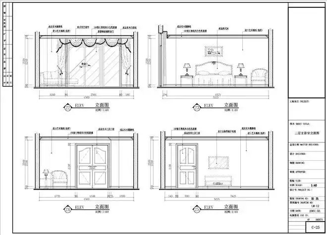
24.别墅三层主卧室立面图-陈文进的设计师家园-三层主卧室立面图

脾在哪个位置图片

再回首 c大调 初学简易版 钢琴双手简谱 钢琴谱