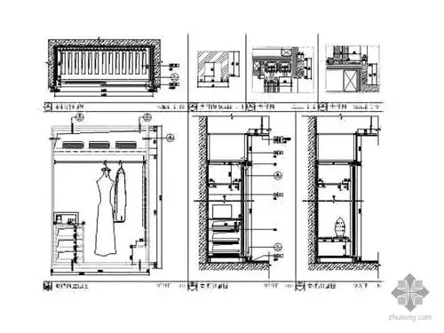
双门衣柜详图

相关图片

某衣柜剖面图cad施工完整构造设计图纸

入墙式衣柜价格怎么计算

课时9-平开门衣柜结构(二)

室内装修双开衣柜cad设计节点详图,内容:包括衣柜立面图,剖面图等

欧式衣柜结构定义

随机推荐

如今的微博却被工作占满. 荧幕面前的贾乃亮剃了利落的短发,不苟言笑.

唯美女孩桌面锁屏壁纸.

张志新:20多年"攒"了个红色文化博物馆

恭喜广东工业大学队获得今年cuba总冠军

调色陈情令蓝忘机王一博

望京凯德mall知人情冷暖的社区大超市

假发男帅气黑色短直发韩版时尚碎盖头蓬松自然短碎发减龄整顶发套

刘家辉