三室两厅户型图效果图大全

相关图片

92平米三室两厅一厨一储卫生间三分离.#平面设计图 #室内设 - 抖音

70平米小户型三室两厅装修设计平面图

坊-150平米三室两厅-现代简约室内家装设计解析-西安东易日盛装饰官网

装修设计 济南装修 济南装修案例 120㎡新中式三室两厅 设一个榻榻米

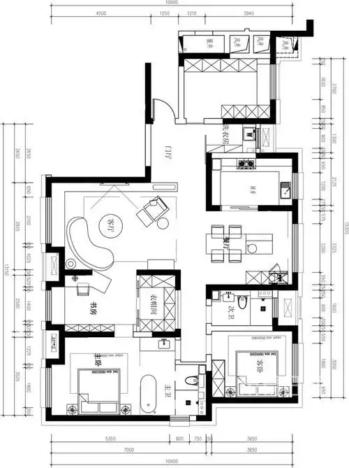
95平米三室两厅平面图设计

随机推荐

宝宝宴生日快乐粉色卡通背景展板

蔡徐坤baby新剧来袭顶级高颜值cp搭档

迪丽热巴绿衣烟熏妆可爱又妩媚

吞噬星空:夺舍完金角巨兽后,罗峰实力究竟有多强,巴巴塔最兴奋_网易

一字肩奢华主婚纱2021新款新娘礼服长拖尾网红抖音豪华奢侈法式夏

不浪漫罪名吉他谱 - 虫虫吉他谱免费下载 - 虫虫吉他

电台情歌 莫文蔚 歌谱 简谱

纯净女声郭沁新作洛希极限空灵声线演绎别样距离